$1,239,000
1,500
SQ FT
$826
SQ/FT
711 Lundy Way
@ Westport Dr - 656 - Fairway Park, Pacifica
- 3 Bed
- 2 Bath
- 2 Park
- 1,500 sqft
- Pacifica
-
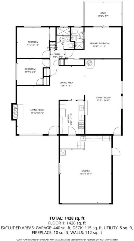
Best East Fairway Park Location. Great quiet neighborhood but very close to Sharp Park Road and Highway 1. The traditional 1130 sq ft rancher has a huge family room making this a 1500 sq foot home. Hardwood floors, updated kitchen and 2 full baths. Close to the downtown Sharp Park area. Flat backyard with a storage shed. Walk to the beach uner the tunnel.
- Days on Market
- 7 days
- Current Status
- Active
- Original Price
- $1,239,000
- List Price
- $1,239,000
- On Market Date
- Jan 13, 2026
- Property Type
- Single Family Home
- Area
- 656 - Fairway Park
- Zip Code
- 94044
- MLS ID
- ML82029385
- APN
- 018-025-230
- Year Built
- 1957
- Stories in Building
- 1
- Possession
- Unavailable
- Data Source
- MLSL
- Origin MLS System
- MLSListings, Inc.
Vallemar Elementary School
Public K-8 Elementary
Students: 514 Distance: 0.5mi
Oceana High School
Public 9-12 Alternative
Students: 599 Distance: 1.1mi
Ingrid B. Lacy Middle School
Public 6-8 Middle
Students: 544 Distance: 1.3mi
Five Keys Charter (SF Sheriff'S) School
Charter 9-12 Secondary
Students: 348 Distance: 1.4mi
Good Shepherd School
Private K-8 Elementary, Religious, Coed
Students: 155 Distance: 1.4mi
Portola Elementary School
Public K-5 Elementary
Students: 337 Distance: 1.7mi
- Bed
- 3
- Bath
- 2
- Parking
- 2
- Attached Garage
- SQ FT
- 1,500
- SQ FT Source
- Unavailable
- Lot SQ FT
- 5,000.0
- Lot Acres
- 0.114784 Acres
- Cooling
- None
- Dining Room
- Dining Area
- Disclosures
- Natural Hazard Disclosure
- Family Room
- Separate Family Room
- Foundation
- Concrete Perimeter
- Fire Place
- Wood Burning
- Heating
- Central Forced Air - Gas
- Fee
- Unavailable
MLS and other Information regarding properties for sale as shown in Theo have been obtained from various sources such as sellers, public records, agents and other third parties. This information may relate to the condition of the property, permitted or unpermitted uses, zoning, square footage, lot size/acreage or other matters affecting value or desirability. Unless otherwise indicated in writing, neither brokers, agents nor Theo have verified, or will verify, such information. If any such information is important to buyer in determining whether to buy, the price to pay or intended use of the property, buyer is urged to conduct their own investigation with qualified professionals, satisfy themselves with respect to that information, and to rely solely on the results of that investigation.
School data provided by GreatSchools. School service boundaries are intended to be used as reference only. To verify enrollment eligibility for a property, contact the school directly.
































